Attention aux piratages ! Gardez à l’esprit qu’aucune de nos agences ne vous demandera de payer pour vous faire visiter un bien. En cas de doutes, contacter directement nos agences par téléphone.

3
Estimer mon bien t
Accueil > Acheter >

Vente appartement 2 pièces 41.72 m² à Toulouse 31500 (31500)

< Revenir à la page précédente
< Précédente Annonce Suivante >

Appartement 2 pièces à vendre

Toulouse 31500 (31500) | Réf. : 1115 | N° 919

Prix de vente : 179 000 € HAI

dont 7% d'honoraires

(HAI) : Honoraires d'Agence Inclus

Prix de vente honoraires exclus : 167 290 €
Honoraires de 7 % à charge acquéreur
Honoraires à charge acquéreur

Calcul du financement
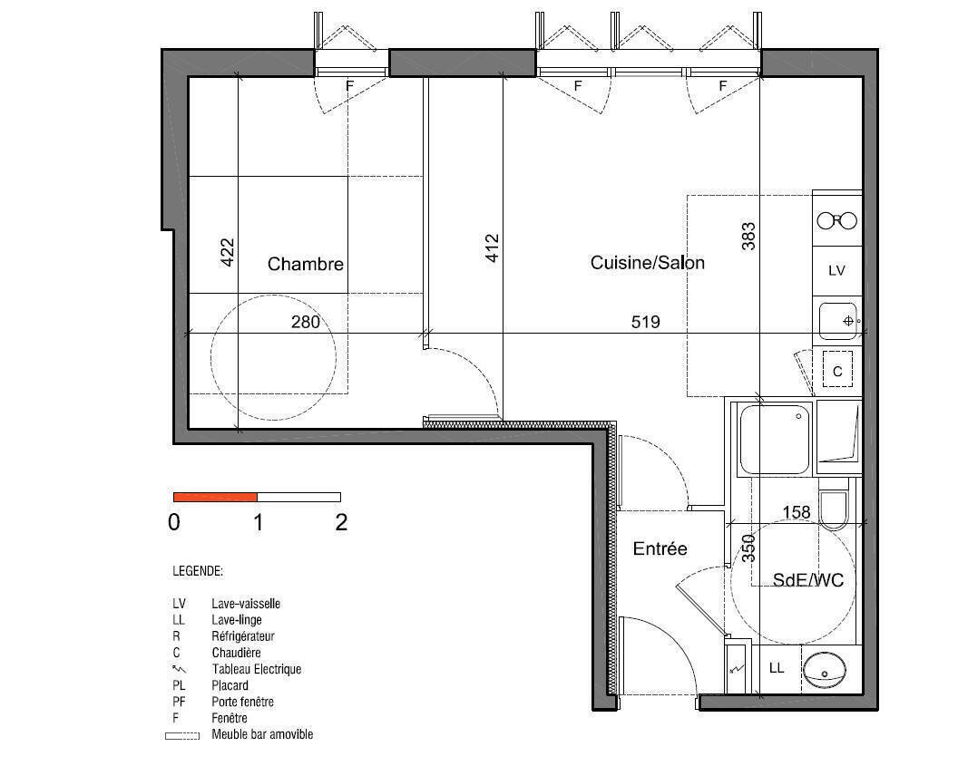
Votre agence Immo de France a le plaisir de vous présenter à la vente cet appartement type 2 en excellent état.

Il se compose d'une entrée, un séjour et cuisine ouverte aménagée et équipée d'une surface totale de 22 M2, très lumineux.

Une chambre de 12 m2 et une salle de bains avec WC complète ce bien.
Aucuns travaux n'est à prévoir.

La place de parking est en sous sol et l'accès sécurisé, la copropriété récente est en excellent état.

La résidence est classée BBC, récente et sécurisée, située dans un quartier résidentiel du château de l'Hers et à proximité immédiate des commerces, bus et écoles.

La résidence est située à proximité immédiate des commerces et des transports (à 5 min à pieds) et à 1km du centre ville de Balma. (7.00 % honoraires TTC à la charge de l'acquéreur.)
Copropriété de 92 lots - dont 92 lots habitation. (Pas de procédure en cours).

Charges annuelles : 881 euros.
Surface habitable : 41.72 m²
Surface séjour : 22.22 m²
Nbre de parking : 1
Type chauffage : Individuel
Nbre de chambres : 1
Nbre de salle de bains : 1

Infos copropriété

Nbre de lots : 92
Charges prévisionnelles : 881 € / an
Les informations sur les risques auxquels ce bien est exposé sont disponibles sur le site Géorisques : www.georisques.gouv.fr

Diagnostic de performance énergétique

C
v Date de réalisation : 15/01/2026
Classe énergie
C
79 kWh/m².an
Classe climat
C
16 kg CO2/m².an

Estimation des coûts annuels d’énergie du logement
Entre 400 € et 580 € par an
Prix moyens des énergies indexés sur l'année 2026 (abonnements compris)

Prix de vente : 179 000 € HAI

dont 7% d'honoraires

(HAI) : Honoraires d'Agence Inclus

Prix de vente honoraires exclus : 167 290 €
Honoraires de 7 % à charge acquéreur
Honoraires à charge acquéreur

Calcul du financement

Localisation & services de proximité

Biens similaires

Vente appartement 3 pièces 65 m² à Toulouse 31500 (31500) Exclusivité

230 000 € HAI - 2 chambres - Toulouse 31500

Appartement - 3 pièces
Toulouse 31500

Prix de vente : 230 000 € HAI HAI

Honoraires à charge acquéreur

Ajouter à ma selection
Appartement - 3 pièces
Toulouse 31500 (31500)
Vente appartement 3 pièces 63.51 m² à Toulouse 31500 (31500) Exclusivité

279 000 € HAI - 2 chambres - Toulouse 31500

Appartement - 3 pièces
Toulouse 31500

Prix de vente : 279 000 € HAI HAI

Honoraires à charge acquéreur

Ajouter à ma selection
Appartement - 3 pièces
Toulouse 31500 (31500)

Nous contacter pour ce bien
Laissez-nous vos coordonnées

J'envisage aussi de mettre un bien à la vente

Obtenir une estimation
J’accepte de recevoir des informations sur l’immobilier, les nouvelles réglementations et les nouvelles offres et produits personnalisés de IMMO de France Toulouse**.

Si vous cochez non, vous indiquez que vous ne souhaitez pas recevoir de lettre d’information sur l'actualité de l’immobilier, les offres et produits du réseau IMMO de France

En cliquant sur Envoyer vous acceptez de recevoir des informations concernant le bien présenté ci-dessus et des offres similaires susceptibles de vous intéresser.

*Champs obligatoires
**Recueil de vos informations personnelles afin de pouvoir gérer la gestion de la relation client et apporter conseils et informations complémentaires au niveau de la marque IMMO de France et le cas échéant au niveau des partenaires et prestataires. En application de la loi Informatique et libertés du 06.01.1978, vous disposez d'un droit d'interrogation d'accès, de rectification et d'opposition pour motifs légitimes relativement à l'ensemble des données vous concernant qui s'exercent par courrier électronique adressé à: dpo.ra@immodefrance.com ou par courrier à IMMO DE FRANCE RHONE ALPES 50 Cours Franklin Roosevelt BP 6056 - 69412 LYON Cedex 06, accompagné d'une copie d'un titre d'identité. Par ailleurs, si vos coordonnées téléphoniques ont été recueillies, vous pouvez vous inscrire sur la liste d’opposition au démarchage téléphonique prévue en faveur des consommateurs par l’article L223-1 du code de la consommation. Pour plus d'informations consulter nos Mentions légales

Nous vous accompagnons pour réaliser
au mieux votre projet immobilier

Immo de France Toulouse, Agence Balma

8 avenue de Toulouse

31130 - Balma

Horaires, équipes Nous appeler Nous contacter Localiser l'agence
t Alerte mail 4 Ma sélection j Simulateur de prêt
cookie