Attention aux piratages ! Gardez à l’esprit qu’aucune de nos agences ne vous demandera de payer pour vous faire visiter un bien. En cas de doutes, contacter directement nos agences par téléphone.

3
Estimer mon bien t
Accueil > Acheter >

Vente appartement 2 pièces 40.18 m² à Toulouse 31100 (31100)

< Revenir à la page précédente
< Précédente Annonce Suivante >

Appartement 2 pièces à vendre

Toulouse 31100 (31100) | Réf. : 35 | N° 937

Prix de vente : 89 000 € HAI

dont 8% d'honoraires

(HAI) : Honoraires d'Agence Inclus

Prix de vente honoraires exclus : 82 407 €
Honoraires de 8 % à charge acquéreur
Honoraires à charge acquéreur

Calcul du financement
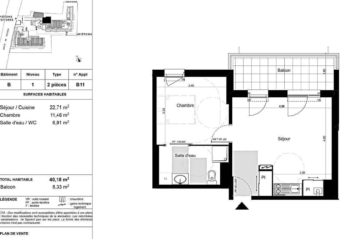
Votre agence Immo de France a le plaisir de vous présenter à la vente et vendu loué cet appartement de type 2 de 40.18 m² situé au 1er étage d'une résidence sécurisée, SANS VIS A VIS.

Il se compose d'une entrée, d'un séjour balcon de 9m², d'une cuisine aménagée et équipée ouverte sur le séjour, d'une très grande chambre, d'une salle d'eau avec wc.

Vous disposerez également d'une place de parking privative en sous-sol.

La résidence se situe à proximité des commerces et de l'ONCOPOLE,
BUS L4 au pied de la résidence, et CARREFOUR MARKET.
Proximité immédiate des commerces

Ligne de bus L4 au pied de la résidence
Carrefour Market accessible à pied
10 MIN du METRO BELLEFONTAINE
10 MIN A PIED FACULTE DE PSYCHO-LANGUES

Loué 538 euros / mois (8.00 % honoraires TTC à la charge de l'acquéreur.)
Copropriété de 47 lots - dont 47 lots habitation.

Charges annuelles : 576 euros.
Surface habitable : 40.18 m²
Valeur locative potentielle : 489 €
Nbre de parking : 1
Type chauffage : Individuel
Nbre de chambres : 1
bien.nbSalleDouche : 1

Infos copropriété

Nbre de lots : 47
Charges prévisionnelles : 576 € / an
Les informations sur les risques auxquels ce bien est exposé sont disponibles sur le site Géorisques : www.georisques.gouv.fr

Diagnostic de performance énergétique

C
v Date de réalisation : 25/02/2025
Classe énergie
C
84 kWh/m².an
Classe climat
C
16 kg CO2/m².an

Estimation des coûts annuels d’énergie du logement
Entre 380 € et 550 € par an
Prix moyens des énergies indexés sur l'année 2025 (abonnements compris)

Prix de vente : 89 000 € HAI

dont 8% d'honoraires

(HAI) : Honoraires d'Agence Inclus

Prix de vente honoraires exclus : 82 407 €
Honoraires de 8 % à charge acquéreur
Honoraires à charge acquéreur

Calcul du financement

Localisation & services de proximité

Biens similaires

Vente appartement 4 pièces 74.24 m² à Toulouse 31100 (31100) Exclusivité

155 000 € HAI - 3 chambres - Toulouse 31100

Appartement - 4 pièces
Toulouse 31100

Prix de vente : 155 000 € HAI HAI

Honoraires à charge acquéreur

Ajouter à ma selection
Appartement - 4 pièces
Toulouse 31100 (31100)
Vente appartement 3 pièces 64.31 m² à Toulouse 31100 (31100) Sous offre - Exclusivité

129 000 € HAI - 2 chambres - Toulouse 31100

Appartement - 3 pièces
Toulouse 31100

Prix de vente : 129 000 € HAI HAI

Honoraires à charge acquéreur

Ajouter à ma selection
Appartement - 3 pièces
Toulouse 31100 (31100)
Vente appartement 4 pièces 79.65 m² à Toulouse 31100 (31100) Exclusivité

145 000 € HAI - 3 chambres - Toulouse 31100

Appartement - 4 pièces
Toulouse 31100

Prix de vente : 145 000 € HAI HAI

Honoraires à charge acquéreur

Ajouter à ma selection
Appartement - 4 pièces
Toulouse 31100 (31100)

Nous contacter pour ce bien
Laissez-nous vos coordonnées

J'envisage aussi de mettre un bien à la vente

Obtenir une estimation
J’accepte de recevoir des informations sur l’immobilier, les nouvelles réglementations et les nouvelles offres et produits personnalisés de IMMO de France Toulouse**.

Si vous cochez non, vous indiquez que vous ne souhaitez pas recevoir de lettre d’information sur l'actualité de l’immobilier, les offres et produits du réseau IMMO de France

En cliquant sur Envoyer vous acceptez de recevoir des informations concernant le bien présenté ci-dessus et des offres similaires susceptibles de vous intéresser.

*Champs obligatoires
**Recueil de vos informations personnelles afin de pouvoir gérer la gestion de la relation client et apporter conseils et informations complémentaires au niveau de la marque IMMO de France et le cas échéant au niveau des partenaires et prestataires. En application de la loi Informatique et libertés du 06.01.1978, vous disposez d'un droit d'interrogation d'accès, de rectification et d'opposition pour motifs légitimes relativement à l'ensemble des données vous concernant qui s'exercent par courrier électronique adressé à: dpo.ra@immodefrance.com ou par courrier à IMMO DE FRANCE RHONE ALPES 50 Cours Franklin Roosevelt BP 6056 - 69412 LYON Cedex 06, accompagné d'une copie d'un titre d'identité. Par ailleurs, si vos coordonnées téléphoniques ont été recueillies, vous pouvez vous inscrire sur la liste d’opposition au démarchage téléphonique prévue en faveur des consommateurs par l’article L223-1 du code de la consommation. Pour plus d'informations consulter nos Mentions légales

Nous vous accompagnons pour réaliser
au mieux votre projet immobilier

Immo de France Toulouse, Agence Balma

8 avenue de Toulouse

31130 - Balma

Horaires, équipes Nous appeler Nous contacter Localiser l'agence
t Alerte mail 4 Ma sélection j Simulateur de prêt
cookie