Attention aux piratages ! Gardez à l’esprit qu’aucune de nos agences ne vous demandera de payer pour vous faire visiter un bien. En cas de doutes, contacter directement nos agences par téléphone.

3
Estimer mon bien t
Accueil > Acheter >

Vente appartement 3 pièces 64.31 m² à Toulouse 31100 (31100)

< Revenir à la page précédente
< Précédente Annonce Suivante >

Appartement 3 pièces à vendre

Toulouse 31100 (31100) | Réf. : 1044 | N° 886

Prix de vente : 139 000 € HAI

dont 7% d'honoraires

(HAI) : Honoraires d'Agence Inclus

Prix de vente honoraires exclus : 129 907 €
Honoraires de 7 % à charge acquéreur
Honoraires à charge acquéreur

Calcul du financement
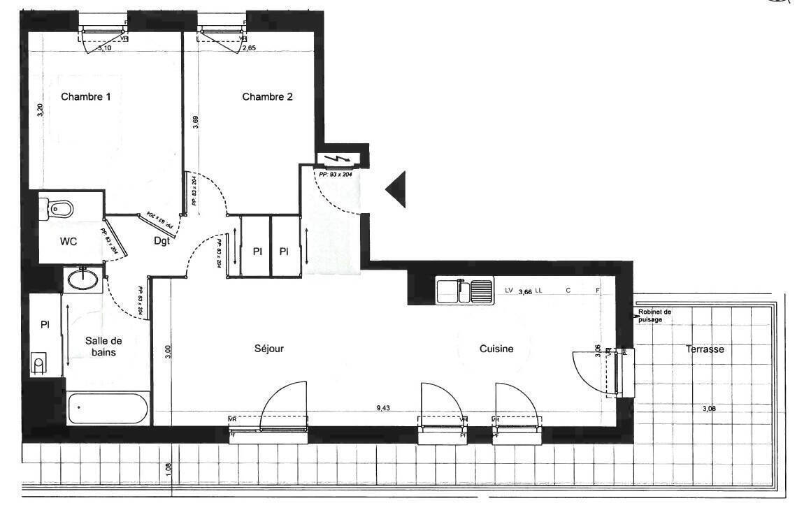
APPARTEMENT T3 TOULOUSE SUD - ONCOPOLE - ST SIMON - PARKING

Votre agence Immo de France à le plaisir de vous proposer à la vente cet appartement T3 au dernier étage.

Il se compose d'une entrée avec placard, d'un grand séjour double avec cuisine aménagée,
Le coin nuit est composé de 2 chambres, d'une salle de bain et d'un wc séparée.
Cet appartement au dernier étage bénéficie d'une très belle terrasse sans vis à vis de 20m2, exposée Sud Ouest.

Une place de parking en sous-sol complète ce bien.

La résidence se situe à proximité des commerces et de l'ONCOPOLE,
BUS L4 au pied de la résidence.

L'appartement est vendu libre d'occupation.
AUCUN TRAVAUX A PREVOIR.
(7.00 % honoraires TTC à la charge de l'acquéreur.)
Copropriété de 47 lots - dont 47 lots habitation. (Pas de procédure en cours).

Charges annuelles : 1136 euros.
Surface habitable : 64.31 m²
Surface séjour : 31.68 m²
Type chauffage : Individuel
Nbre de chambres : 2
Nbre de salle de bains : 1
Les informations sur les risques auxquels ce bien est exposé sont disponibles sur le site Géorisques : www.georisques.gouv.fr

Diagnostic de performance énergétique

C
v Date de réalisation : 20/11/2025
Classe énergie
C
66 kWh/m².an
Classe climat
C
14 kg CO2/m².an

Estimation des coûts annuels d’énergie du logement
Entre 620 € et 880 € par an
Prix moyens des énergies indexés sur l'année 2025 (abonnements compris)

Prix de vente : 139 000 € HAI

dont 7% d'honoraires

(HAI) : Honoraires d'Agence Inclus

Prix de vente honoraires exclus : 129 907 €
Honoraires de 7 % à charge acquéreur
Honoraires à charge acquéreur

Calcul du financement

Localisation & services de proximité

Nous contacter pour ce bien
Laissez-nous vos coordonnées

J'envisage aussi de mettre un bien à la vente

Obtenir une estimation
J’accepte de recevoir des informations sur l’immobilier, les nouvelles réglementations et les nouvelles offres et produits personnalisés de IMMO de France Toulouse**.

Si vous cochez non, vous indiquez que vous ne souhaitez pas recevoir de lettre d’information sur l'actualité de l’immobilier, les offres et produits du réseau IMMO de France

En cliquant sur Envoyer vous acceptez de recevoir des informations concernant le bien présenté ci-dessus et des offres similaires susceptibles de vous intéresser.

*Champs obligatoires
**Recueil de vos informations personnelles afin de pouvoir gérer la gestion de la relation client et apporter conseils et informations complémentaires au niveau de la marque IMMO de France et le cas échéant au niveau des partenaires et prestataires. En application de la loi Informatique et libertés du 06.01.1978, vous disposez d'un droit d'interrogation d'accès, de rectification et d'opposition pour motifs légitimes relativement à l'ensemble des données vous concernant qui s'exercent par courrier électronique adressé à: dpo.ra@immodefrance.com ou par courrier à IMMO DE FRANCE RHONE ALPES 50 Cours Franklin Roosevelt BP 6056 - 69412 LYON Cedex 06, accompagné d'une copie d'un titre d'identité. Par ailleurs, si vos coordonnées téléphoniques ont été recueillies, vous pouvez vous inscrire sur la liste d’opposition au démarchage téléphonique prévue en faveur des consommateurs par l’article L223-1 du code de la consommation. Pour plus d'informations consulter nos Mentions légales

Nous vous accompagnons pour réaliser
au mieux votre projet immobilier

Immo de France Toulouse, Agence Balma

8 avenue de Toulouse

31130 - Balma

Horaires, équipes Nous appeler Nous contacter Localiser l'agence
t Alerte mail 4 Ma sélection j Simulateur de prêt
cookie